bb电子游戏官网

bb电子游戏官网全程加入陕西省首个装配整体式办公楼项目

bb电子游戏官网

陕西建工新型建材有限公司办公楼为陕西省首个接纳装配整体式框架结构制作的公建项目,,,,,,,现在,,,,,,,该项目已经顺遂完成三层预制框架柱、框架梁、叠合板和双T板的装置。。 。。。。

bb电子游戏官网作为PC咨询照料和深化设计单位,,,,,,,全历程加入了该项目的设计、生产和施工,,,,,,,突显bb电子游戏官网集团关于装配式修建这一热门领域的专业能力,,,,,,,助力都会生长更好,,,,,,,更快,,,,,,,更绿色。。 。。。。

1.项目概况

陕建新型建材办公楼位于西咸新区秦汉工业园的陕西修建工业基地,,,,,,,建设单位:陕西建工新型建材有限公司 ; ;;主体修建设计单位:陕西建工集团总公司修建设计院 ; ;;总承包单位:陕建八建集团 ; ;;PC照料及深化单位:bb电子游戏官网集团。。 。。。。该项目作为陕西省首个接纳装配整体式框架结构+双T板的办公项目,,,,,,,在外地起到了优异的树模效应。。 。。。。

单体总面积为5400平方米,,,,,,,地上4层,,,,,,,局部2层,,,,,,,结构总高度15.55m。。 。。。。由抗震缝分为两个结构单位,,,,,,,四层办公部分,,,,,,,从首层柱即最先预制,,,,,,,主要预制构件有预制框架柱、预制框架梁、预制次梁、预制钢筋桁架叠合板底板、预制空调板、预制楼梯和预制隔墙 ; ;;二层裙房配套的大跨度聚会室(单间面积390平方米),,,,,,,接纳了15m跨的预制双T板叠合板,,,,,,,叠合现浇层厚80mm。。 。。。。

陕西修建工业基地?

?◥?工业基地全景

首层预制柱、预制梁全景

◥?首层预制柱、预制梁全景

?

2.手艺特点

2.1平面安排

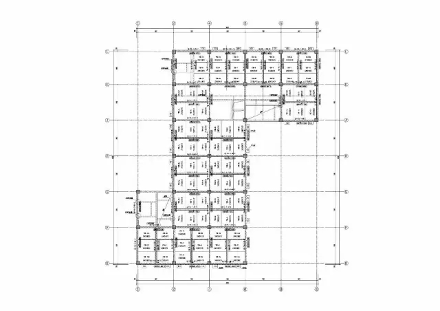
本工程凭证模数化的设计理念对修建平面举行了优化,,,,,,,遵照少规格多组合的原则。。 。。。。典范柱跨为7.5m,,,,,,,设计中统一规格梁、柱截面尺寸坚持一致。。 。。。。所有框架柱(门头除外)均为预制,,,,,,,平面上除楼电梯间、卫生间区域外,,,,,,,其余位置均接纳预制叠合梁板。。 。。。。

 典范楼层预制构件安排图?

?

◥?典范楼层预制构件安排图

?

2.2节点设计

框架梁柱节点中,,,,,,,充分思量底筋避让和焦点区箍筋安顿顺序,,,,,,,包管节点区域的顺遂施工。。 。。。。

底筋避让和箍筋安顿?

◥?底筋避让和箍筋安顿

中柱、边柱梁柱节点焦点区箍筋

◥?中柱、边柱梁柱节点焦点区箍筋

?

预制主梁和预制次梁的毗毗邻纳牛担板节点。。 。。。。

预制主梁和预制次梁的毗毗邻纳牛担板节点。。。。。。</

◥?牛担板节点

?

2.3 预制叠合板做法

本工程接纳预制钢筋桁架叠合板,,,,,,,预制底板厚60mm,,,,,,,现浇叠合层80mm,,,,,,,板边不出筋,,,,,,,接纳密拼拼缝。。 。。。。

预制叠合板底板?

◥?预制叠合板底板

?

2.4 双T板的应用

二层配套办公中的大聚会室,,,,,,,单间面积为390平方米,,,,,,,聚会室楼面和屋顶层均接纳了预制双T板叠合板。。 。。。。每层安排9块15m跨预应力双T板,,,,,,,肋高和预应力筋数目凭证聚会室恒、活荷载单独举行设计,,,,,,,单块双T板重约11.5t,,,,,,,现场接纳汽车吊装置。。 。。。。

15m跨预制双T板?

?◥?15m跨预制双T板

双T板端部横肋

◥?双T板端部横肋

?

?3.BIM手艺的应用

本项目接纳了bb电子游戏官网集团自主开发的三维BIM协作平台举行构件深化设计,,,,,,,对构件、钢筋、金属件等举行碰撞检查,,,,,,,并提前举行了预拼装施工模拟,,,,,,,有用阻止了施工历程中可能爆发的装置问题。。 。。。。

BIM模子效果图?

?◥?BIM模子效果图

预制构件安排效果图

◥?预制构件安排效果图

预制构件深化界面

◥?预制构件深化界面

预制楼梯深化界面

◥?预制楼梯深化界面

?

通过BIM模子导入3D打印机,,,,,,,选取个体构件举行了3D打。。 。。。。,,,,,,直观的展示了构件的形状细节。。 。。。。

3

◥?预制双T板3D模子(左)、预制楼梯3D模子?(右) ?

含有预制梯板的楼梯间3D模子

◥?含有预制梯板的楼梯间3D模子

?

在BIM模子的基础上,,,,,,,举行预拼装施工模拟。。 。。。。

?

叠合板吊装?

?◥?叠合板吊装

节点现浇

◥?节点现浇

柱吊装

◥?柱吊装

?

?4.结语

本项目为陕西省首个预制装配整体式框架结构,,,,,,,同时也是预制双T板叠合板在办公修建中的首次应用。。 。。。。在项目实验历程中,,,,,,,业主方起劲把控各个环节 ; ;;设计方全心设计,,,,,,,在自主开发的三维BIM协作平台上应用BIM手艺举行构件深化,,,,,,,并充分应用BIM模子举行碰撞检查和施工模拟,,,,,,,包管了项目顺遂举行 ; ;;构件生产方事情做细做实,,,,,,,确保了构件产品顺遂生产 ; ;;施工方充分重视,,,,,,,制订了专项施工计划,,,,,,,为构件装置就位提供了高精度包管。。 。。。。

?

bb电子游戏官网关于装配式修建的探索从未停歇,,,,,,,现在bb电子游戏官网主编参编相关标准或图集13项,,,,,,,主持装配式修建面积已超800万平方米,,,,,,,56个项目周全笼罩上海、深圳、合肥、重庆、南京、大连、西安、宁波、青岛、无锡、蚌埠等都会。。 。。。。未来的bb电子游戏官网将继续专注都会建设领域专业效劳,,,,,,,为行业转型升级、都会一连生长孝顺更多实力。。 。。。。

?

bb电子游戏官网装配式修建设计及研发效果?

?◥?bb电子游戏官网装配式修建设计及研发效果

?

作者:刘琛

 
【网站地图】【sitemap】