bb电子游戏官网

凌波庭院藕香悄——古涧堂品臻园的庭院再起

bb电子游戏官网

一块用地,,,一沓指标,,,一组周边修建,,,

以及必需使用的、优异的周边情形资源,,,

怎样打造静谧的独栋都会会所,,,

在急躁的繁华中,,,

为静思冥想、促膝交流、品鉴臻藏留一方净土? ??

一块小小的扇形基地

周边景观情形效果示意

周边景观情形效果示意

古涧堂品臻园(以下简称品臻园)基地为两面环水的扇形园地,,,相邻地块拥有大片精彩的植被景观。。。。但正因云云,,,园地的面积和轮廓被牢牢的限制住了,,,导致设计用地狭隘且形状不规则,,,难以充分使用周边景观。。。。

景观资源及限制

景观资源及限制

与许多设计的最先历程类似,,,作为商业会所修建群体的品臻园,,,同样面临着现实条件、需求和理想三者之间的冲突矛盾:用地有限因此修建间距狭窄,,,指标要求更高因此群体拥挤,,,景观资源富厚因此朝向被界说。。。。在这些情形下,,,我们该怎样最大限度地提升设计品质? ??由于商业会所群体内修建的私密性要求较高,,,因此设计师通过精妙地协调而组织出的最终计划提供了一种解决园地问题的新要领。。。。

设计者通过在? ??榛胱杂啥取⑺矫苡牍病⑾执牍虐迦悦艿男宰又溆卫,,,为我们提供了玄妙合理的谜底。。。。

?

一场庭院原型的乐高游戏

通俗制作历程中的本钱要求和施工治理需要我们尽可能知足常用的设计模数关系,,,或是以同样的设计填满整个园地。。。。但在扇形的园地上,,,要求和条件似乎成为了一个悖论。。。。景观朝向的差别、园地的不规则将会对差别位置修建的朝向提出要求,,,这意味着统一种手法不可能解决园地上的所有问题,,,而同时修建制作本钱还必需被纳入思量规模。。。。

景观资源不平衡将直接影响修建朝向

景观资源不平衡将直接影响修建朝向、

庭院位置等,,,使得修建空间边沿不匀称

设计者凭证模数的基本要求,,,通过对空间功效举行的调解构建出了数个平面原型。。。。平面原型相互排列组合举行拼接组成修建和修建群体。。。。这样的设计方法有用地阻止了重回复型所带来的枯燥,,,有用地使用了资源并且有用地镌汰了制作本钱。。。。这种解决方法充分体现了修建类型学的焦点看法:“修建中有一种元素,,,它不是修建实体所要听从的,,,而是保存于原型之中。。。。这就是规则,,,修建的组织原则。。。。”

以L型平面单体为例的修建单体的空间组织关系?

?

以L型平面单体为例的修建单体的空间组织关系

这种看法的条件是视修建为一种结构,,,而修建物自己可以体现和展现这种结构。。。。这个永恒的原则可以称为典范元素,,,或简称为类型,,,它保存于所有的修建物中。。。。在品臻园中,,,我们可以看到设计者为了顺应景观和空间需求而做出的结构改变,,,却依然不影响修建焦点功效和框架的稳固。。。。

品臻园整体结构鸟瞰图?

?品臻园整体结构鸟瞰图

4

架构稳固,,,差别户型和庭院空间相互组合以顺应周边情形要求

?

作为解决朝向问题的一种手段,,,院落在项目中成为了举足轻重的一个环节。。。。在差别的组团内,,,院落更像是地块中的正空间,,,指导了修建的形态和朝向。。。。

组团鸟瞰-院落与修建空间相互交织

组团鸟瞰-院落与修建空间相互交织

北侧邻水时,,,院落被修建切分,,,主要留下北侧滨水与南侧临路的院落空间;;;东侧邻水时主要院落空间邻水,,,次要院落空间作为修建与蹊径之间的缓冲空间;;;在园地内部时,,,主要院落放在南侧而次要院落靠北,,,包管空间私密性的同时最大化南侧景观使用和采光。。。。

修建被院落切分,,,院与筑自然渗透

修建被院落切分,,,院与筑自然渗透

?

品臻园沿河透视效果?

一种私密性与公共性的玄妙平衡?

?

品臻园沿河透视效果

一种私密性与公共性的玄妙平衡

每一组的庭院都为使用者所使用,,,而在保唬;に矫苄缘耐倍宰橥拍诘墓部占淇杉。。。。这一方法解决了园地狭隘的问题。。。。庭院和修建相互之间爆发了叠合的关系。。。。在形式上即是“院落式修建”。。。。

项目中公共空间与私密空间相互嵌套,,,空间感受富厚

项目中公共空间与私密空间相互嵌套,,,空间感受富厚

庭院、修建与内部蹊径的关系

庭院、修建与内部蹊径的关系

院内景观对公共区域可见,,,但并不滋扰使用者的私密需求

庭院内景观对公共区域可见,,,但并不滋扰使用者的私密需求

内侧修建单体的院落普遍安顿于修建和蹊径之间以保唬;に矫苄

内侧修建单体的院落普遍安顿于修建和蹊径之间以保唬;に矫苄

院落式修建已非当今海内修建的主流修建形式,,,即即是已有的一些项目,,,院落大都是在园地面积富足而景观缺乏的情形下一种景观营造的手段。。。。而在品臻园项目中,,,这一形式成为了狭隘园地的解决计划:院的泛起,,,既建设起了私密与公共之间的关系,,,同时也充分地使用了景观。。。。

品臻园庭院分区示意图?

品臻园庭院分区示意图

院落式修建一直是东方古板修建文化的焦点,,,它展现了天人合一的理念。。。。从留园,,,网师园等古板私人园林中我们很容易窥得古板文化中无处不在的自然。。。。而造园中,,,自然渗透的方法,,,院与筑之间始终坚持着玄妙的联系。。。。

在品臻园项目中,,,设计师保存了古板院落的条理,,,同时改善了古板庭院“内视”的问题,,,将富厚的空间条理合理地继续至园地之中。。。。五种庭院相互穿插,,,空间相互渗透。。。。

品臻园内院空间透视?

品臻园内院空间透视

路径作为一种空间的手法,,,能够在合适的时间提供应体验者适当的感受。。。。项目中,,,主路和支路以树状模式组织,,,每一条支路走向园地中最隐秘的庭院接壤点,,,以这些位置作为节点进入修建,,,最大限度保唬;ち嗣慷靶藿ㄗ约壕肮鄣耐暾,,,使用者的收支不会对景观造成影响,,,同时差别修建的使用者也不会视察到其他使用者收支的行为。。。。

工字型路网造成的地块中部进深过大?

?

工字型路网造成的地块中部进深过大

从外貌上看,,,工字型的路网貌似也能解决交通问题,,,但现实上降低了入口的私密性体验。。。。四排修建使用两排蹊径,,,肯定会使得两条蹊径上的修建入口相对,,,同时也就限制了修建的主要朝向。。。。

王字型路网造剖析人流,,,包管入口私密性?

?

王字型路网造剖析人流,,,包管入口私密性

因此,,,王字型的路网,,,看似由于增添了一条蹊径,,,而铺张了空间,,,现实上包管了朝向上的景观使用,,,同时保唬;ち怂矫苄。。。。入口与景观朝向的差别为每一幢修建营造了相对私密的景观体验,,,这在园地不狭隘的项目中也很难见到。。。。

品臻园院落组团鸟瞰?

?

品臻园院落组团鸟瞰

一次对中式庭院的今世解构重构

女士凡德罗并不是强迫症,,,所有的设计师都希望将自己的理念在每一个细节上贯彻究竟。。。。这种执着是为了尽可能的为使用者塑造一个乌托邦。。。。而设计者同样执着于这些细节。。。。

组团内修建细部气概统一

组团内修建细部气概统一

庭院景观通过种种细节手法被公共空间内的使用者所共享,,,景观使用效率大大提高。。。。院门两侧墙体分段降低,,,使得院内景观对外可见。。。。部分片墙错动设置,,,景观也会从误差中渗透出来。。。。总体结构类似里坊制名堂,,,但细节的处置惩罚却隐约泛起了造园的手法。。。。犹抱琵琶半遮面的景观在整个区域内爆发了很是隐晦却有趣的效果。。。。

修确立面气概研究历程?

修确立面气概研究历程

65655

修确立面气概研究历程

767

轻盈片墙和景观树木的高度关系组合

?

片墙和景观树木的选择,,,也对最终的景观可达性爆发影响,,,因此,,,越是细节,,,则越是需要仔细的斟酌与推敲。。。。米色墙体的使用削弱了修建的保存感,,,增强了微景观对视线的吸引。。。。无处不在的片墙成为了公共景观和可见的私密景观之间的支解。。。。将私密与公共体现了出来。。。。这种古板手法中的退让,,,将景观放在了使用者的眼前,,,退让出了一种十分自然的体验。。。。

外部空间景观通过高度差同时被室内使用?

?外部空间景观通过高度差同时被室内使用

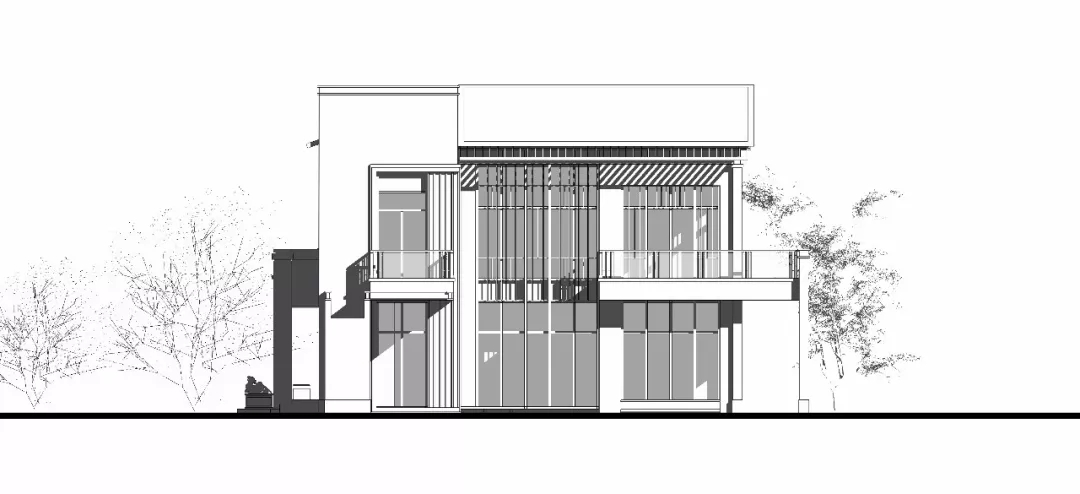
整体立面气概继续了古板中式美学的特点,,,檐口、窗框与片墙压顶巧妙地再现了古板的组成和语汇。。。。亮度较高的主墙面和深色压顶组成了黑与白之间亮度和体积的玄妙平衡。。。。

用地面积,,,修建面积,,,修建密度,,,容积率……当我们谈论起这些指标以及其他控制要素,,,我们或许已经将他们与设计票鹄氘间建设起了映射关系。。。。但设计是戴着镣铐的舞蹈,,,指标是否确凿是品质的唯一量度? ??现在,,,紧凑的设计并不少见,,,许多优异的刷新和更新项目更是让人眼前一亮。。。。而许多这样的设计,,,往往陪同着设计师与限制之间的对抗。。。。

?

我们可以将冰山理论应用到设计当中来。。。。许多不可见的因素同样影响着设计品质。。。。在这样的情形下,,,指标等控制手段仅仅只能作为一种数据参考而非设计参照。。。? ??刂剖侄尾⒎遣恢饕,,,但更主要的是怎样界说和确定评价标准和控制手段。。。。

?

当品质的时代来临的时间,,,我们需要在被种种条件所制约的设计现实中,,,探索出一条崭新的蹊径。。。。

?

项目名称:古涧堂品臻园

设计单位:bb电子游戏官网

项目地点:上海市青浦区朱家角镇珠溪路与课植园路交汇处

业主及运营者:秦森集团

用地面积:19371.5㎡

修建面积:13622.78㎡

容积率:0.4

设计时间:?2014 年 5 月-?2015 年 12 月

完工时间:2016 年?12 月

效劳内容:看法、计划、扩初、施工图

景观设计:泰森园林股份

修建摄影:是然修建摄影

修建设计团队:韩冰、葛斌、王媛、王美景、鄢大红、赵志华、严晓奇、周晓宇

?

?

?撰文 / 帛澐

 
【网站地图】【sitemap】